Listing Details

About Property

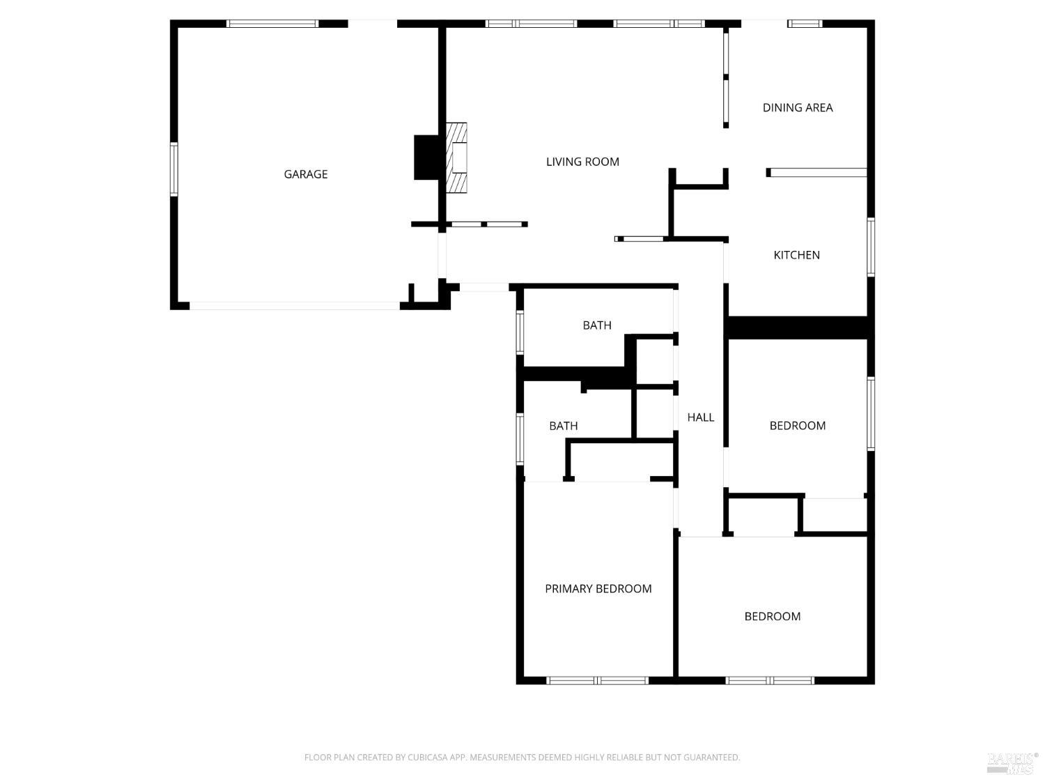
Vintage Cosmetic Fixer off Summerfield near Howarth, Spring Lake, and Trione-Annadel Parks! A rare find! 3br/2bath home with a 2-car garage on a large lot featuring mature trees. The charming 1950's era breeze brick porch entry, vintage interior plant wall, dining room built-ins and fireplace are reminiscent of its mid-century roots. The house is surrounded by great, old-fashioned neighborhood energy! Just 2 blocks from Spring Lake Charter School, within walking or rolling distance to Whole Foods or donuts on Yulupa or a bit further to the popular Montgomery Village. Howarth Park (pony rides, train, carousel, and the BEST playground anywhere), Spring Lake Park, and Trione-Annadel State Park with access to recreational activities like lake walks, boating, fishing, hiking, camping or mountain biking are minutes away. Spring Lake has a free, lifeguard-supported seasonal swim lagoon and water park! Restaurants and shopping are abundant and a delight. The nearby intersection of Hoen Avenue, Summerfield, and access to Hwy 101 makes travel easy. This is a cosmetic fixer where your vision and creativity can guide the detailing of this home's next chapter. The roof, plumbing, electrical service and bathrooms are older, but they are working fine. There is a new moisture barrier, under-house ducting, and a roll-up garage door. We've spared you the effort of removing the old carpet; you'll get a peek at the original flooring with little starbursts. You'll agree it needs new flooring in these areas. It can also use a new coat of paint inside and out. The kitchen, windows and some electrical wiring are past their prime. The landscaping and drainage needs updating, especially in the back. We've lightly staged the home to help you imagine what is possible! You'll have lots of ways to relax and enjoy at the end of each day. Both pest and home inspections are available. Come by and see if this will be your new home and your next project!

 
Quick Info

1102 Michigan DrSanta Rosa, CA 95405

$625,000

1,180sq.ft.
0.14acre lot
3
2

Property Details

  • Address1102 Michigan Dr
  • City, ZIPSanta Rosa, CA 95405
  • MLS #326035168
  • Price$625,000
  • TypeResidential
  • SubtypeSingle Family Residence
  • Total Bathrooms 2

  • Full Bathrooms 2

  • Half Bathrooms0
  • Primary Bathroom Features Low-Flow Shower(s),Shower Stall(s),Tile,Window
  • Bedrooms 3
  • Primary Bedroom Features Closet,Ground Floor
  • Sq Ft1,180
  • Year Built:1956
  • County:Sonoma
  • Main Level RoomsBedroom(s),Dining Room,Full Bath(s),Garage,Kitchen,Living Room,Primary Bedroom,Street Entrance
  • Interior AmenitiesDining Room,Kitchen,Living Room,Primary Bedroom
  • FlooringLinoleum,Vinyl,Wood
  • AppliancesBuilt-In Electric Oven,Dishwasher,Gas Cook Top,Gas Water Heater
  • Laundry FeaturesDryer Included,Gas Hook-Up,Ground Floor,In Garage,Washer Included
  • Cooling FeaturesNone
  • Heating FeaturesCentral
  • Fireplaces1
  • Fireplace FeaturesLiving Room,Wood Burning
  • Kitchen FeaturesTile Counter
  • Total Rooms8
  • Garagre Spaces2
  • Total Parking Spaces6
  • Parking FeaturesAttached,Garage Facing Front,Side-by-Side,Uncovered Parking Spaces 2+
  • Patio And Porch FeaturesBack Porch,Covered Deck,Uncovered Deck
  • FencingBack Yard,Wood
  • Lot Square Feet5,998
  • Lot Size Acres0.14 Acres
  • Lot DescriptionCurb(s)/Gutter(s),Garden,Street Lights
  • Lot Size SourceAssessor Auto-Fill
  • Security FeaturesCarbon Mon Detector,Smoke Detector
  • UtilitiesElectric,Natural Gas Connected,Public,Sewer Connected

Location

Listing Provided by: Heather Concoff, Corcoran Icon Properties

Broker Reciprocity

Copyright 2026, Bay Area Real Estate Information Services, Inc. All Rights Reserved

Ron represented me twice in recent years on the listing and sale of two investment properties. His vast knowledge and experience in real estate made for trouble free and expedient transactions. Ron’s communication and negotiation skills are top notch. Highlighting Ron’s genial personality, it was a pleasure to have him represent me.

— Glenn S.

Ron was a tremendous help during an extremely difficult transition for me after living in my house for 36 years.  He went far beyond what I expected in a RE Broker by helping to enhance the appeal of my house and by guiding me through all the challenges that came up from selling a rural property.  And he’s just a genuinely nice guy! His calm attentiveness and deep knowledge made the move bearable when I felt like giving up just from exhaustion. On top of that, he helped me acquire my current house which is so perfect for me during this new chapter of my life. A very happy ending!

— Sharon B.

Ron Welsh, the owner/broker of Sonoma County Properties Inc., has been nothing less than an angel in disguise when it came to the sale of my grandmothers property.

When my grandmother died at the age of 103, she left her only asset of a country property in Santa Rosa to her four children in equal shares. These are four senior citizen adults that did not typically see eye to eye. Ron was patient, understanding, unflappable, and made the process extremely easy. His experience in real estate transactions was evident and his experience in dealing with multiple obstreperous parties was clearly unmatched.

Ron kept the family apprised of every step in the process and was successful in selling my grandmothers (rather dilapidated) home in just a few days to the satisfaction of all parties. That was no easy feat.

I would highly recommend Ron and his team in any real estate transaction, whether that be buying or selling a home.

— Kathleen Pozzi

I found Ron to be the consummate professional. He is extremely skilled and accomplished at all phases of the sales process. His hard work and negotiating skills were the deciding factor in closing the sale of our home in less than 90 days at 97% of our asking price. That is a real accomplishment, as our home was priced at the upper end of the market where buyers were far and few between.

I would highly recommend Ron’s services for anybody looking to purchase or sell a home in this area.

— mwerneralsco

We were looking for a unique house with character. Ron took the time to understand our needs and was patient with us as we spent many months looking for the right house. He was always available to answer questions or tour properties, and didn’t push us to commit to something that wasn’t right. Ron was a calm, reassuring presence during our search. He knows both the real estate business and the local market. Ron is an experienced advocate you’ll be glad to have in your corner. He is the Realtor we would recommend to friends and family.

— MF Warren

We were able to hit our target date for listing and Ron had us priced right to get multiple offers within 48 hours. From that we were able to choose a strong buyer and close in under 3 weeks, still in October. What had seemed an impossible dream became our new reality thanks to Ron’s experience and ability to get us connected to the right people and complete our pre-sale tasks. Aside from all this Ron is simply a great person to know and work with. He is hands on (literally helping me tear down a false wall the tenants had erected) and was constantly extending offers to help in any way he can with the contractor and appliance deliveries. I strongly recommend Ron to anyone looking for a top quality real estate experience.

— Kevin E.

Ron has helped our family members buy two homes and sell another. I’ve also recommended him to several friends over the years – something I only do when I really trust someone to take good care of them. Everyone has really enjoyed working with him and they’ve become repeat customers of his now too. He knows Sonoma County so well and has a great mellow personality. except when you need him to really rally for you during price negotiations – the perfect combo you want in a realtor!

— Kelley K.

Ron negotiated our very challenging deal with multiple transacations and deadlines. This was definately the kind of situation the required experience. He went the extra mile to ensure that both our real estate sale and purchase closed on time. This was such a tricky process, I really don’t think it would have happened without Ron there to help us through!

— Nick S.

Ron Welsh, has been our real estate the past few months, He has conducted himself, very professional, has been very sincere in our needs of real estate. Dealing with past agents some were not very reliable, Ron was always on time with appointments. It has been a pleasure working with him.

— David & Linda R.

I’ve had 2 purchase and one sell experiences in my life so far; hands down Ron Welsh / Sonoma County Properties was best real estate experience I’ve had to date.

In the end, I felt like Ron was really on my side, advocating my position at every step. Thanks to him, our project is well on its way and we should have our new home for the next holidays.

— S Lietzke

Free Home Evaluation

Serving Cloverdale, Graton, Healdsburg, Rohnert Park, Santa Rosa, Sebastopol, Tomales, Windsor and surrounding Sonoma County, CA areas.

Access accurate real estate info by the numbers.

The First step when selling your home is to set the right price for the current market conditions in your area.

Get a Free Home Evaluation