Listing Details

About Property

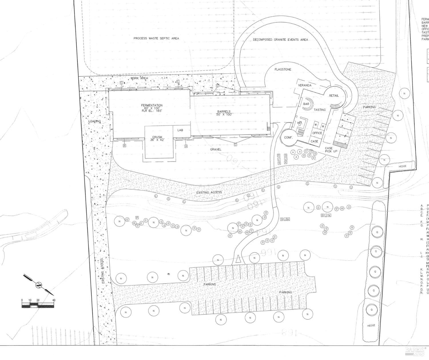
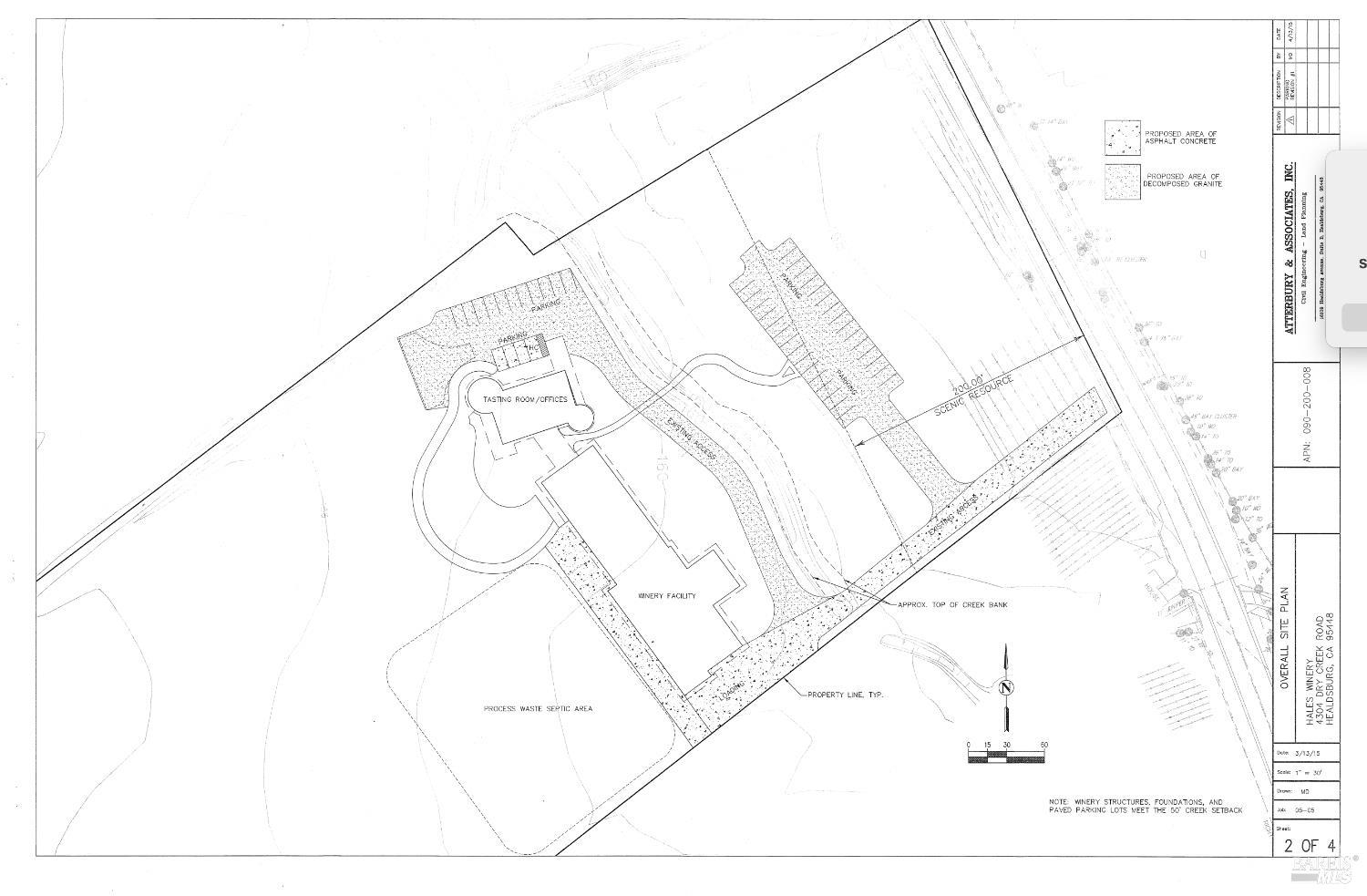
Dry Creek Valley winery development, estate residence & vineyard opportunity! Nestled along scenic Dry Creek Road with direct frontage on both Dry Creek Road and the picturesque Dry Creek river itself, this 40-acre vineyard estate has the potentially to be subdivided into two twenty acre +/- parcels and offers a rare, fully permitted opportunity to develop a world-class winery on one of Sonoma County's premier sites in the heart of Healdsburg's renowned Dry Creek Valley. Currently planted to approximately 37.5 +/- acres of high-quality vines (including Block 2 Old Vine Zinfandel planted in 1953, newer Zinfandel blocks, Merlot, Petite Sirah, and Primitivo), the property has consistently delivered 112-130 tons of premium fruit annually in recent years. Fruit contracts are available. The mature, the terroir produce exceptional grapes ideal for estate bottling. What truly distinguishes this offering is the long-standing approved Sonoma County use permit for a single 17,000+/- sq ft winery building that includes an attached tasting room and retail space, with a maximum annual production capacity of 25,000 cases. Detailed architectural plans (elevations, floor plans, and site layout are included, featuring board-and-batten siding with cedar stain, corrugated iron roofing, natural wood exposed structures, and thoughtful integration into the rolling landscape. The approved site plan provides for tasting/veranda areas, flagstone events space, ample parking & loading, Public tasting, retail sales, agricultural promotional events, and limited weddings/special events expressly permitted, the infrastructure is in place to launch or expand an immediate wine business. Recent engineering and improvement permits confirm ongoing project readiness. Dramatic aerial views reveal orderly vine rows hugging the Dry Creek riverbank setting with beach access and open meadows in a park setting, mature oak trees and sweeping hill vistas perfect for creating an iconic estate winery and tasting destination. Whether you are an established vintner ready to build your label or a visionary buyer seeking to realize the long-planned Hales Winery, this turn-key permitted property with prime Dry Creek Road and Dry Creek river frontage in the heart of Zinfandel country represents a singular opportunity. All plans, permits, and production history are available for immediate review.

 
Quick Info

4304 Dry Creek RdHealdsburg, CA 95448

$7,500,000

40.00acre lot

Property Details

  • Address4304 Dry Creek Rd
  • City, ZIPHealdsburg, CA 95448
  • MLS #326023132
  • Price$7,500,000
  • TypeLand
  • SubtypeAgriculture


  • County:Sonoma
  • FencingNone
  • Lot Square Feet1,742,400
  • Lot Size Acres40.00 Acres
  • Lot DescriptionBuilding Pad,Lake/River Access,Meadow West,Stream Year Round
  • Lot Size SourceNot Verified
  • ViewHills,Mountains,Orchard,Ridge,River,Vineyard
  • UtilitiesCable Available,Generator Permited,Phone Available,Phone TBD,Propane,Water Available,Other

Location

Listing Provided by: Jeffrey M Bounsall, Coldwell Banker Realty

Broker Reciprocity

Copyright 2026, Bay Area Real Estate Information Services, Inc. All Rights Reserved

Ron represented me twice in recent years on the listing and sale of two investment properties. His vast knowledge and experience in real estate made for trouble free and expedient transactions. Ron’s communication and negotiation skills are top notch. Highlighting Ron’s genial personality, it was a pleasure to have him represent me.

— Glenn S.

Ron was a tremendous help during an extremely difficult transition for me after living in my house for 36 years.  He went far beyond what I expected in a RE Broker by helping to enhance the appeal of my house and by guiding me through all the challenges that came up from selling a rural property.  And he’s just a genuinely nice guy! His calm attentiveness and deep knowledge made the move bearable when I felt like giving up just from exhaustion. On top of that, he helped me acquire my current house which is so perfect for me during this new chapter of my life. A very happy ending!

— Sharon B.

Ron Welsh, the owner/broker of Sonoma County Properties Inc., has been nothing less than an angel in disguise when it came to the sale of my grandmothers property.

When my grandmother died at the age of 103, she left her only asset of a country property in Santa Rosa to her four children in equal shares. These are four senior citizen adults that did not typically see eye to eye. Ron was patient, understanding, unflappable, and made the process extremely easy. His experience in real estate transactions was evident and his experience in dealing with multiple obstreperous parties was clearly unmatched.

Ron kept the family apprised of every step in the process and was successful in selling my grandmothers (rather dilapidated) home in just a few days to the satisfaction of all parties. That was no easy feat.

I would highly recommend Ron and his team in any real estate transaction, whether that be buying or selling a home.

— Kathleen Pozzi

I found Ron to be the consummate professional. He is extremely skilled and accomplished at all phases of the sales process. His hard work and negotiating skills were the deciding factor in closing the sale of our home in less than 90 days at 97% of our asking price. That is a real accomplishment, as our home was priced at the upper end of the market where buyers were far and few between.

I would highly recommend Ron’s services for anybody looking to purchase or sell a home in this area.

— mwerneralsco

We were looking for a unique house with character. Ron took the time to understand our needs and was patient with us as we spent many months looking for the right house. He was always available to answer questions or tour properties, and didn’t push us to commit to something that wasn’t right. Ron was a calm, reassuring presence during our search. He knows both the real estate business and the local market. Ron is an experienced advocate you’ll be glad to have in your corner. He is the Realtor we would recommend to friends and family.

— MF Warren

We were able to hit our target date for listing and Ron had us priced right to get multiple offers within 48 hours. From that we were able to choose a strong buyer and close in under 3 weeks, still in October. What had seemed an impossible dream became our new reality thanks to Ron’s experience and ability to get us connected to the right people and complete our pre-sale tasks. Aside from all this Ron is simply a great person to know and work with. He is hands on (literally helping me tear down a false wall the tenants had erected) and was constantly extending offers to help in any way he can with the contractor and appliance deliveries. I strongly recommend Ron to anyone looking for a top quality real estate experience.

— Kevin E.

Ron has helped our family members buy two homes and sell another. I’ve also recommended him to several friends over the years – something I only do when I really trust someone to take good care of them. Everyone has really enjoyed working with him and they’ve become repeat customers of his now too. He knows Sonoma County so well and has a great mellow personality. except when you need him to really rally for you during price negotiations – the perfect combo you want in a realtor!

— Kelley K.

Ron negotiated our very challenging deal with multiple transacations and deadlines. This was definately the kind of situation the required experience. He went the extra mile to ensure that both our real estate sale and purchase closed on time. This was such a tricky process, I really don’t think it would have happened without Ron there to help us through!

— Nick S.

Ron Welsh, has been our real estate the past few months, He has conducted himself, very professional, has been very sincere in our needs of real estate. Dealing with past agents some were not very reliable, Ron was always on time with appointments. It has been a pleasure working with him.

— David & Linda R.

I’ve had 2 purchase and one sell experiences in my life so far; hands down Ron Welsh / Sonoma County Properties was best real estate experience I’ve had to date.

In the end, I felt like Ron was really on my side, advocating my position at every step. Thanks to him, our project is well on its way and we should have our new home for the next holidays.

— S Lietzke

Free Home Evaluation

Serving Cloverdale, Graton, Healdsburg, Rohnert Park, Santa Rosa, Sebastopol, Tomales, Windsor and surrounding Sonoma County, CA areas.

Access accurate real estate info by the numbers.

The First step when selling your home is to set the right price for the current market conditions in your area.

Get a Free Home Evaluation