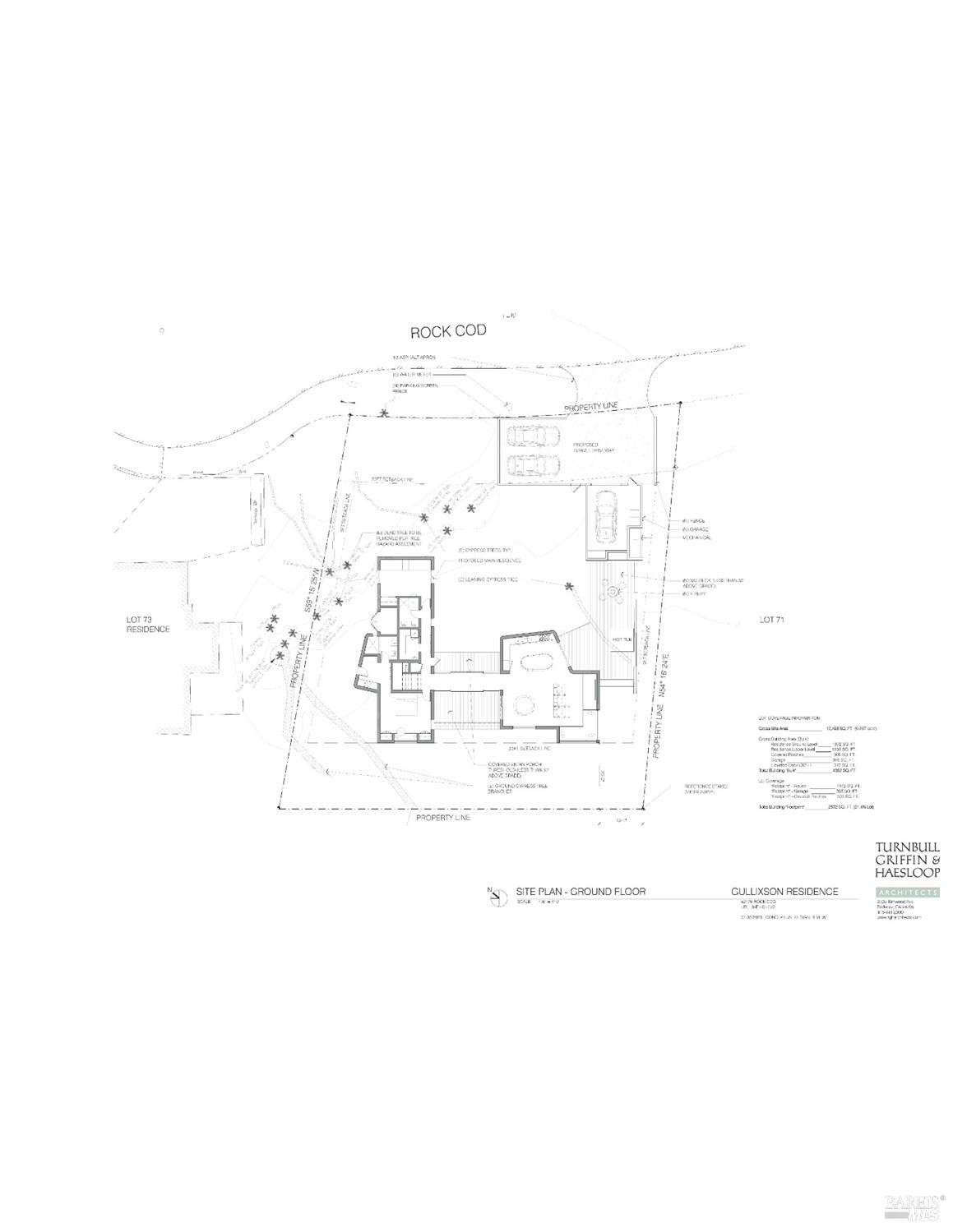
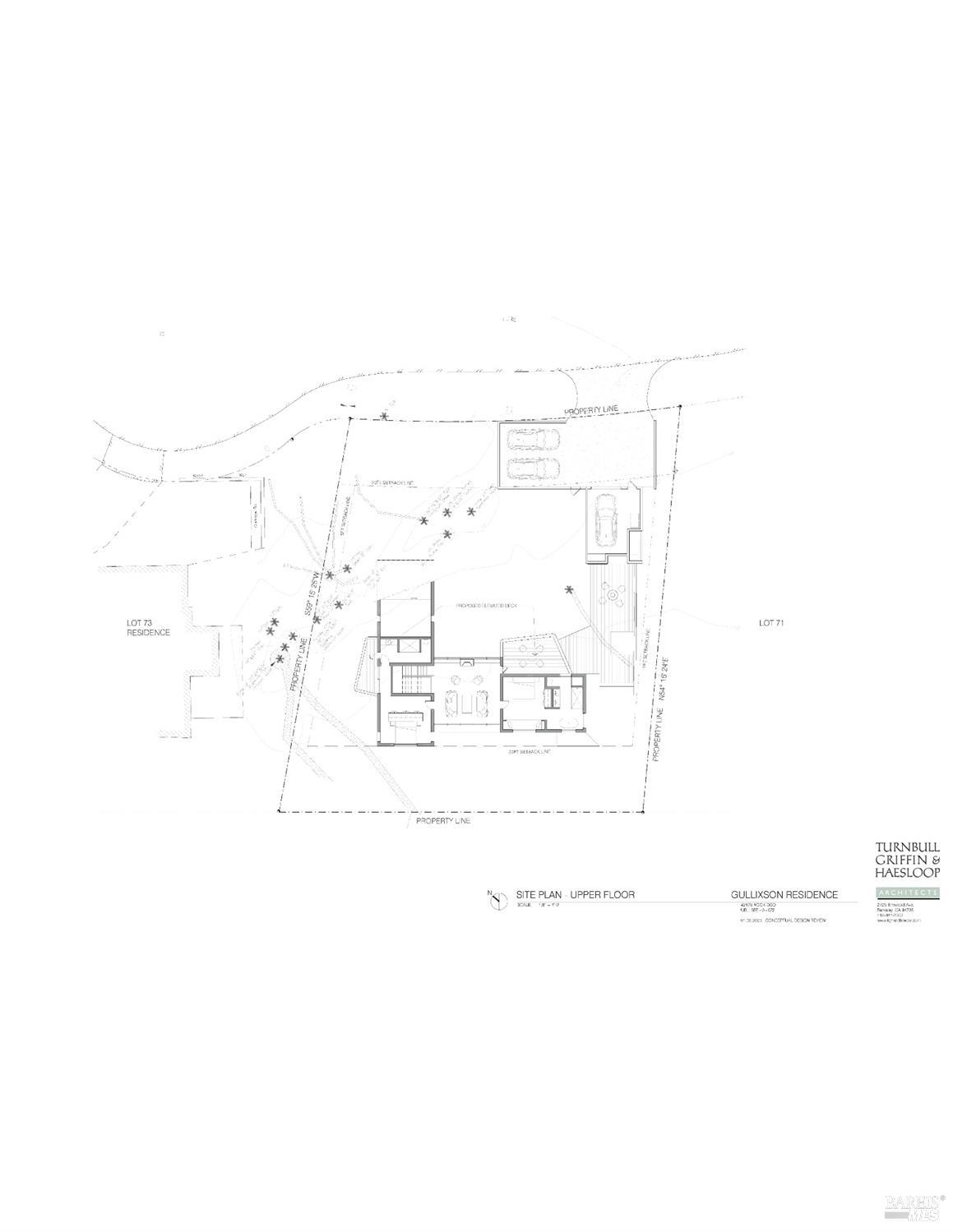
Experience the rugged beauty of the Sonoma Coast in the distinctive community of The Sea Ranch. This exceptional ocean bluff lot comes with an inspired conceptual design by renowned architect Eric Haesloop of Turnbull Griffin Haesloop an award-winning firm that has shaped some of the region's most iconic homes since 1965. Set on a level parcel with sweeping ocean views, the property includes valuable infrastructure already in place: sewer connection, fiber optic internet, and a 24-foot height allowance. The thoughtfully designed 4-bedroom home concept blends modern comfort with the natural landscape, nestled among dramatic, windswept cypress trees. Skip the lengthy permitting and study phase and begin bringing your vision to life right away. Enjoy direct access to the breathtaking 10-mile bluff trail, with Gualala Point Beach just a scenic 15-minute walk away. Nearby amenities include the Sea Ranch Del Mar Recreation Center, offering a pool, tennis courts, pickleball, and yoga. Just a short drive north, the charming village of Gualala provides everyday essentials, dining, and local shops. This is coastal living at its finestwhere architecture, nature, and tranquility come together.
Copyright 2026, Bay Area Real Estate Information Services, Inc. All Rights Reserved
Serving Cloverdale, Graton, Healdsburg, Rohnert Park, Santa Rosa, Sebastopol, Tomales, Windsor and surrounding Sonoma County, CA areas.
The First step when selling your home is to set the right price for the current market conditions in your area.
Get a Free Home Evaluation