Listing Details

About Property

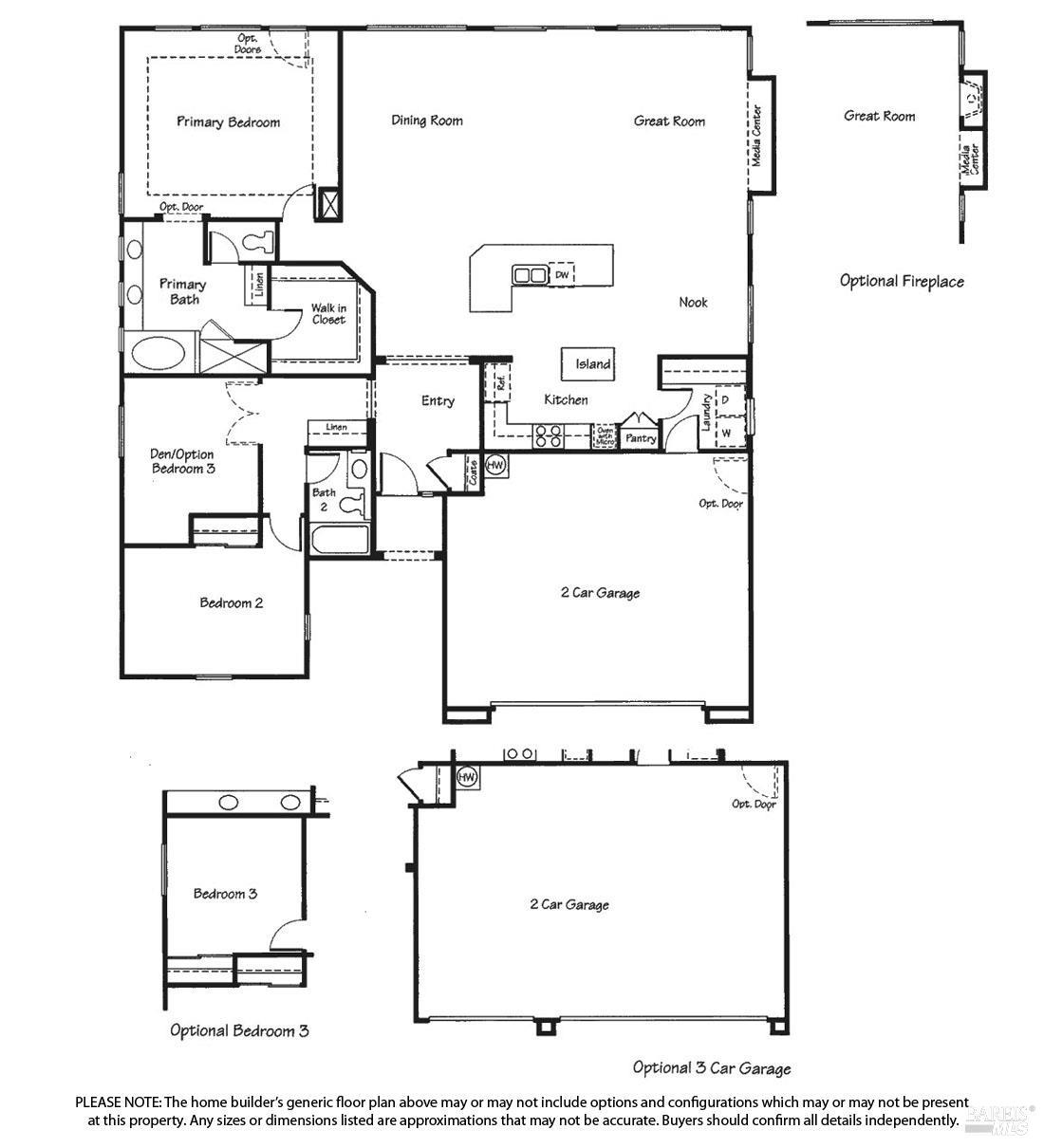
This fabulously upgraded Windsor model with 3 car garage enjoys a premium lot backing on Trilogy's lovely golf course with spacious views from its large open great room and luxurious primary suite. Features include beautiful tile flooring throughout with carpeting in the bedrooms, beautiful oak cabinetry throughout, lovely custom blinds surrounding the great room, plantation shutters in the primary suite and guest bedroom, a private den with double doors, and an elegantly mantled fireplace in the great room. The open kitchen boasts gorgeous solid-slab granite countertops with full backsplash, a large outer island with sink and pendant light above, a smaller inner prep island, under cabinet lighting, and lovely stainless appliances including a side-by-side refrigerator, gas cooktop, double ovens, microwave, and dishwasher. The luxurious primary suite boasts beautiful crown molding, ceiling fan, new carpeting, cultured marble vanity, shower, and bath surrounds, bench seating in the shower, a roomy soaking tub, and a large walk-in closet with custom organizer. Enjoy the beautiful golf course views while relaxing outdoors on the huge covered patio overlooking the fairway of the 3rd hole of the golf course. Home includes washer and dryer. Trilogy is a 55+ community.

 

Price History

$559,000 -> $549,000 on 03/18/2626
Quick Info

210 Magnolia DrRio Vista, CA 94571

$549,000

2,031sq.ft.
0.14acre lot
2
2

Property Details

  • Address210 Magnolia Dr
  • City, ZIPRio Vista, CA 94571
  • MLS #326021629
  • Price$549,000
  • TypeResidential
  • SubtypeSingle Family Residence
  • Total Bathrooms 2

  • Full Bathrooms 2

  • Half Bathrooms0
  • Primary Bathroom Features Double Sinks,Shower Stall(s),Soaking Tub
  • Bedrooms 2
  • Primary Bedroom Features Walk-In Closet
  • Sq Ft2,031
  • Year Built:2007
  • County:Solano
  • Main Level RoomsBedroom(s),Dining Room,Full Bath(s),Garage,Kitchen,Living Room,Primary Bedroom,Street Entrance
  • Interior AmenitiesDining Room,Kitchen,Laundry,Living Room,Primary Bathroom,Primary Bedroom,Office,Possible Guest
  • FlooringCarpet,Tile
  • AppliancesDishwasher,Disposal,Double Oven,Free Standing Refrigerator,Gas Cook Top,Microwave
  • Laundry FeaturesDryer Included,Inside Room,Washer Included
  • Cooling FeaturesCeiling Fan(s),Central
  • Heating FeaturesCentral
  • Fireplaces1
  • Fireplace FeaturesGas Log,Living Room
  • Dining Room FeaturesDining/Living Combo
  • Kitchen FeaturesBreakfast Area,Granite Counter,Island,Island w/Sink,Pantry Cabinet
  • Living Room FeaturesGreat Room
  • Garagre Spaces3
  • Total Parking Spaces3
  • Parking FeaturesAttached,Garage Door Opener,Garage Facing Front,Interior Access,Side-by-Side
  • Pool FeaturesBuilt-In,Common Facility,Indoors,Lap,Pool/Spa Combo
  • Patio And Porch FeaturesCovered Patio
  • Lot Square Feet6,220
  • Lot Size Acres0.14 Acres
  • Lot DescriptionAdjacent to Golf Course,Auto Sprinkler F&R,Landscape Back,Landscape Front
  • Lot Size SourceAssessor Auto-Fill
  • ViewGolf Course
  • Security FeaturesCarbon Mon Detector,Double Strapped Water Heater,Guarded Gate,Security System Owned,Smoke Detector,Unguarded Gate
  • UtilitiesCable Available,Cable Connected,DSL Available,Electric,Internet Available,Natural Gas Connected,Public,Sewer In & Connected

Location

Listing Provided by: Debbie Werter, Wood Real Estate Inc.

Broker Reciprocity

Copyright 2026, Bay Area Real Estate Information Services, Inc. All Rights Reserved

Ron represented me twice in recent years on the listing and sale of two investment properties. His vast knowledge and experience in real estate made for trouble free and expedient transactions. Ron’s communication and negotiation skills are top notch. Highlighting Ron’s genial personality, it was a pleasure to have him represent me.

— Glenn S.

Ron was a tremendous help during an extremely difficult transition for me after living in my house for 36 years.  He went far beyond what I expected in a RE Broker by helping to enhance the appeal of my house and by guiding me through all the challenges that came up from selling a rural property.  And he’s just a genuinely nice guy! His calm attentiveness and deep knowledge made the move bearable when I felt like giving up just from exhaustion. On top of that, he helped me acquire my current house which is so perfect for me during this new chapter of my life. A very happy ending!

— Sharon B.

Ron Welsh, the owner/broker of Sonoma County Properties Inc., has been nothing less than an angel in disguise when it came to the sale of my grandmothers property.

When my grandmother died at the age of 103, she left her only asset of a country property in Santa Rosa to her four children in equal shares. These are four senior citizen adults that did not typically see eye to eye. Ron was patient, understanding, unflappable, and made the process extremely easy. His experience in real estate transactions was evident and his experience in dealing with multiple obstreperous parties was clearly unmatched.

Ron kept the family apprised of every step in the process and was successful in selling my grandmothers (rather dilapidated) home in just a few days to the satisfaction of all parties. That was no easy feat.

I would highly recommend Ron and his team in any real estate transaction, whether that be buying or selling a home.

— Kathleen Pozzi

I found Ron to be the consummate professional. He is extremely skilled and accomplished at all phases of the sales process. His hard work and negotiating skills were the deciding factor in closing the sale of our home in less than 90 days at 97% of our asking price. That is a real accomplishment, as our home was priced at the upper end of the market where buyers were far and few between.

I would highly recommend Ron’s services for anybody looking to purchase or sell a home in this area.

— mwerneralsco

We were looking for a unique house with character. Ron took the time to understand our needs and was patient with us as we spent many months looking for the right house. He was always available to answer questions or tour properties, and didn’t push us to commit to something that wasn’t right. Ron was a calm, reassuring presence during our search. He knows both the real estate business and the local market. Ron is an experienced advocate you’ll be glad to have in your corner. He is the Realtor we would recommend to friends and family.

— MF Warren

We were able to hit our target date for listing and Ron had us priced right to get multiple offers within 48 hours. From that we were able to choose a strong buyer and close in under 3 weeks, still in October. What had seemed an impossible dream became our new reality thanks to Ron’s experience and ability to get us connected to the right people and complete our pre-sale tasks. Aside from all this Ron is simply a great person to know and work with. He is hands on (literally helping me tear down a false wall the tenants had erected) and was constantly extending offers to help in any way he can with the contractor and appliance deliveries. I strongly recommend Ron to anyone looking for a top quality real estate experience.

— Kevin E.

Ron has helped our family members buy two homes and sell another. I’ve also recommended him to several friends over the years – something I only do when I really trust someone to take good care of them. Everyone has really enjoyed working with him and they’ve become repeat customers of his now too. He knows Sonoma County so well and has a great mellow personality. except when you need him to really rally for you during price negotiations – the perfect combo you want in a realtor!

— Kelley K.

Ron negotiated our very challenging deal with multiple transacations and deadlines. This was definately the kind of situation the required experience. He went the extra mile to ensure that both our real estate sale and purchase closed on time. This was such a tricky process, I really don’t think it would have happened without Ron there to help us through!

— Nick S.

Ron Welsh, has been our real estate the past few months, He has conducted himself, very professional, has been very sincere in our needs of real estate. Dealing with past agents some were not very reliable, Ron was always on time with appointments. It has been a pleasure working with him.

— David & Linda R.

I’ve had 2 purchase and one sell experiences in my life so far; hands down Ron Welsh / Sonoma County Properties was best real estate experience I’ve had to date.

In the end, I felt like Ron was really on my side, advocating my position at every step. Thanks to him, our project is well on its way and we should have our new home for the next holidays.

— S Lietzke

Free Home Evaluation

Serving Cloverdale, Graton, Healdsburg, Rohnert Park, Santa Rosa, Sebastopol, Tomales, Windsor and surrounding Sonoma County, CA areas.

Access accurate real estate info by the numbers.

The First step when selling your home is to set the right price for the current market conditions in your area.

Get a Free Home Evaluation