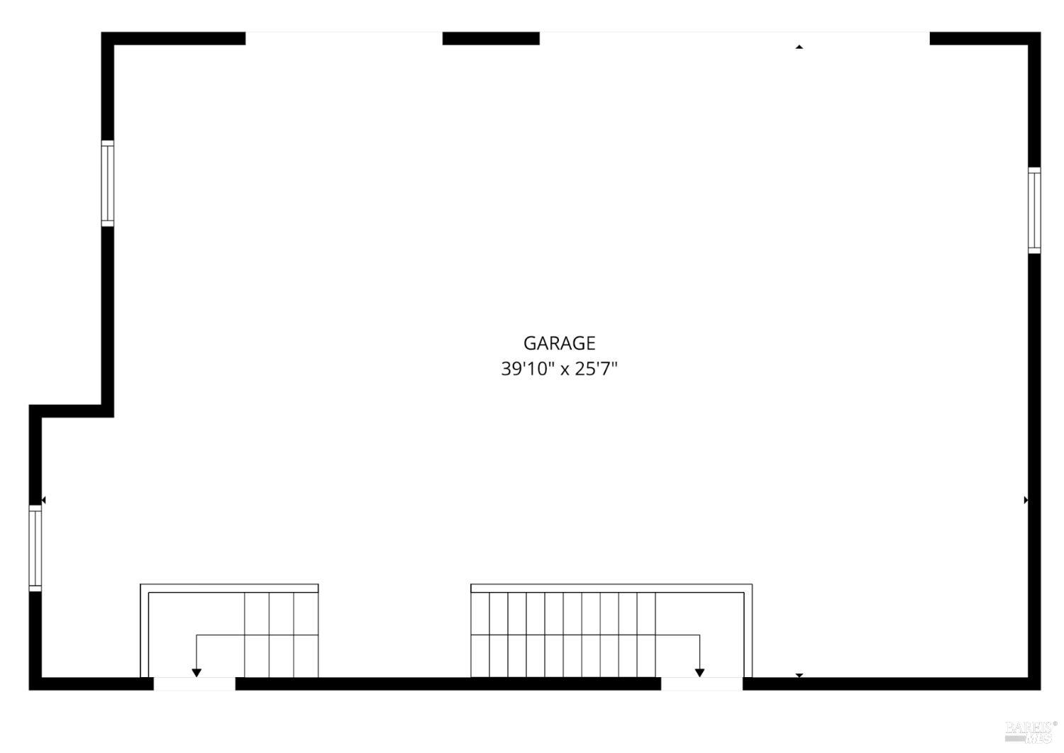
Set on over six private acres in historic Asti, this meticulously reimagined single-level residence seamlessly blends sophisticated design with the serenity of wine country living. Every surface, system, and detail has been thoughtfully upgraded to create a refined sanctuary where modern luxury meets natural beauty. Step through the gated entry and custom Simpson wood door to discover sun-drenched interiors featuring wide-plank Siberian white oak floors, plastered walls, and soaring ceilings. The reimagined kitchen showcases hand-chipped travertine floors, Thermador built-in refrigeration, and custom pantry cabinetry. Both bathrooms have been completely renovated with designer finishes, while the master suite offers expanded windows framing tranquil hillside views and a spa-inspired bathroom with luxurious soaking tub. Outside, professional landscaping creates an intimate retreat with olive trees, raised garden beds, and peaceful walkways. Stained cedar accents complement the smooth stucco exterior, while Andersen wood casement windows flood every room with light. The oversized three-car garage features enhanced door height and built-in cabinetry. Sustainability meets sophistication with solar panels, Tesla Powerwalls, heat pump systems, and tankless water heatingdelivering energy independence without compromise. Located minutes from Geyserville's acclaimed dining and wine tasting, yet cocooned in absolute privacy, this architecturally designed estate offers the rare combination of refined infrastructure, turnkey elegance, and quintessential wine country lifestyle.
Copyright 2026, Bay Area Real Estate Information Services, Inc. All Rights Reserved
Serving Cloverdale, Graton, Healdsburg, Rohnert Park, Santa Rosa, Sebastopol, Tomales, Windsor and surrounding Sonoma County, CA areas.
The First step when selling your home is to set the right price for the current market conditions in your area.
Get a Free Home Evaluation